
Industrial Shade Structure
Lightweight steel frame with curved metal roof for operational protection
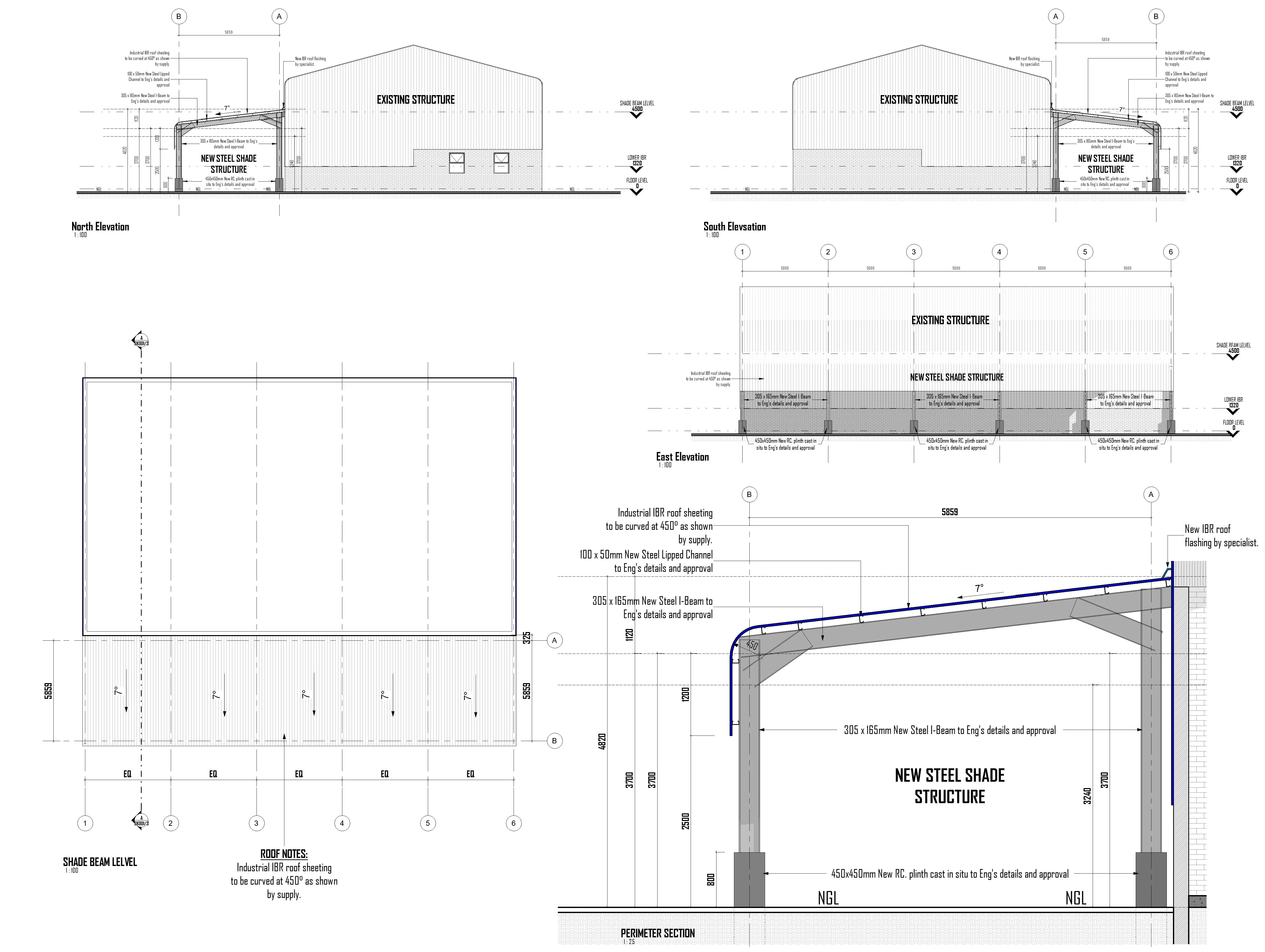
A functional industrial shade structure designed to extend and protect existing operational space. The architecture is driven by efficiency and structural clarity, featuring a lightweight steel frame supporting a continuous curved metal roof with generous overhangs. The open-sided perimeter allows for ventilation, easy access, and flexible use, while the raised masonry base provides durability and impact resistance. The simple geometry, repetitive structural bays, and integrated drainage and roof detailing prioritize performance, weather protection, and constructability over formal expression.
Project Details
- Location
- Various Locations
- Category
- Industrial Architecture
- Images
- 3 photos
Project Gallery
Related Projects
View allReady to Start Your Project?
If you're looking for a reliable and innovative architectural design firm, get in touch to discuss your project.
